Aluplast IDEAL® 4000

Das Kunststoff-Basissystem in kantiger Optik

  • Solides 5-Kammer Profilsystem mit RAL Gütezeichen
  • Garantiert kein Vergilben
  • Sehr gute Schall- und Wärmedämmung

Ihre Vorteile im Überblick

  • 5-Kammer Profil von aluplast in flächenversetzter Optik
  • Zusätzlicher Einbruchschutz durch Sicherheitsbeschlag
  • Standard-Verglasung mit Ug Wert 1,1 W/m²K
  • Oberflächenqualität
  • Deutsche Markenqualität

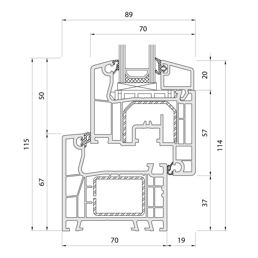
 Profilbeschreibung

  • Verglasung: Anders als bei machen Bildern gezeigt, verarbeiten wir ausschließlich 3-fach Verglasung.  
  • Glasdichtung: Die Glasdichtung sorgt für einen optimalen Schutz gegen Wassereintritt
  • Flügeloptik: Der Flügel ist in klassischem flächenversetzten Design ausgeführt
  • Glasleiste: Sorgt für den notwendigen Anpressdruck zwischen Dichtungen und Glas
  • Dichtungsebenen: Die beiden Dichtungsebenen sorgen für eine gute Wärme- und Schalldämmung
  • Stahlverstärkung: Durch die Stahlverstärkung wird eine sehr gute Stabilität erzielt
  • Profilkammern: Um eine gute Wärmedämmung erzielen zu können, sind die Profile in mehrere Kammern unterteilt

IDEAL 4000 – Systembeschreibung

  • 70 mm Bautiefe und Uf-Wert = 1,3 W/m²K
  • Standardverglasung Ug1,1 W/m²K
  • Dreifachverglasung bis UgWert 0,6 W/m²K
  • Rahmen mit verschraubter Stahleinlage in 70 mm Ansichtsbreite
  • Anschlagdichtungssystem mit 2 Ebenen in papyrusweiß
  • Dreh-Kipp-Beschlag mit Fehlbedienungssperre
  • Dichtungen bei Dekor schwarz
  • Grundsicherheit mit zwei Sicherheitspilzkopfbolzen und zwei Sicherheits-Schließblechen
  • Scheibendicke von 20 bis 42 mm
  • Ausführung in weiß oder Dekor
  • Witterungsbeständig durch Kunststoffe mit moderner Additiv-Technologie
  • Wetterfest durch einextrudierte Dichtungen gemäß DIN 18055
  • Bis zu 97 % recycelbare Materialien
  • Wärme-, Sicherheits- und Schallschutzverglasungen möglich

Ideal 4000 - Die Vorteile im Detail

5-Kammer-Profilsystem von ALUPLAST in flächenversetzter Optik

Durch das umlaufende Anschlagdichtungssystem und die Stahlarmierung in Flügel und in Blendrahmen wird eine hohe Stabilität erreicht. Darüber hinaus sorgt die geschützt liegende Beschlagkammer für einen exzellenten Einbruchschutz.

Das Ideal 4000 lässt sich problemlos mit Schallschutz und Sicherheitsgläsern kombinieren, erreicht dank einer 3-fach-Verglasung exzellente Wärmedämmwerte und somit eine hohe Kostenersparnis und die Erfüllung der Energiesparverordnung.

Zusätzlicher Einbruchschutz durch Sicherheitsbeschlag

Winkhaus activPilot® ist ein innovatives Drehkippbeschlagsystem, das in StabilitätSicherheit und Funktionalität führend im Markt ist. Es gibt dabei unterschiedliche Sicherheitsklassen: Basissicherheit, BasisPlus sowie der Beschlag RH 2. Durch das RAL Gütezeichen und dem Produktionsstandort Deutschland profitieren Sie von soliden Beschlägen in hochwertiger Qualität. Spezielle Achtkant- Sicherheitsschließzapfen sorgen für einen Einbruchschutz. Sie sind zudem verstellbar, um den Anpressdruck schnell und einfach regulieren zu können.

Standard-Verglasung mit Ug-Wert 1,1 W/m²K

Da der Wärmeschutz bei den Fenstern eine immer größere Rolle spielt, können Sie Ihre neuen Fenster auch mit 3-fach-Verglasungen konfigurieren. Hier haben Sie die Wahl zwischen den Werten Ug 0,7 W/m²K oder Ug 0,6 W/m²K.

Zudem können Sie die 3-fach-Verglasungen zusätzlich mit Sicherheitsglas und Schallschutz kombinieren. Dies bietet Ihnen die Möglichkeit, die benötigten Fenster optimal an Ihre Gegebenheiten vor Ort anpassen zu können.

Oberflächenqualität

Bei Kunststofffenstern steht Ihnen eine Vielzahl von Dekorfolien zur Auswahl: Die Dekorfolien werden direkt bei der Herstellung der Kunststoffprofile untrennbar verbunden. Dies garantiert Ihnen eine lang anhaltende Farbstabilität, die gegenüber Kratzern und dem Ausbleichen durch Sonneneinstrahlung unempfindlich ist.

Es stehen Ihnen nicht nur klassische Dekore in Holzoptik zur Verfügung, sondern außerdem noch Trendfarben wie diverse Grau-, Pastell- und Naturtöne.

Deutsche Markenqualität

Bei uns erhalten Sie ausschließlich deutsche Markenfenster. Wir sind Mitglied im Verband der Fenster- und Fassadenhersteller e.V. Der Standort Deutschland ist vor allem wegen der guten Qualität, aber auch aus ökonomischen Gründen wie der Arbeitsplatzförderung wichtig.

Für Sie bedeutet das beste Qualität bei Material und Haltbarkeit mit einem hervorragenden Preis- Leistungsverhältnis.

Zertifizierte Markenqualität aus renommiertem Haus

Die Profile Ihrer hier erwerblichen Kunststofffenster stammen von Aluplast, einem renommierten Profilhersteller mit Sitz in Baden-Württemberg. Alle Kunststofffenster-Profilsysteme tragen das RAL-Gütezeichen. Die ständige externe Überwachung der Produktion garantiert Ihnen beste Qualität.

Achten Sie beim Kauf von Fenstern und Türen stets auf das RAL-Gütezeichen! Nur bei Produkten mit diesem Siegel können Sie eine gute Qualität voraussetzen.

Kunststofffenster IDEAL 4000

Das aluplast Ideal 4000 Fenster aus Kunststoff hat ein 5-Kammer Profil mit RAL Gütezeichen und besitzt eine Garantiezeit von 5 Jahren.

Liste der ELEMENTE - Wohnhaus "ADRIAN" (im Preis enthalten)

Eingangstür im vorderen Giebel

Fenster - Elemente im vorderen Giebel

Fenster - Elemente im hinteren Giebel

1 x Eingangstür und 6 x Fenster

statt in Weiß (links) auch in Golden Oak lieferbar (rechts)